MAGAZINE INTERVIEW
沐木|玄關格柵雙面牆當前景 梧桐木、石材兩種風情雙主牆,編入書籍《主牆設計聖經》
媒體:主牆設計聖經
時間:2019.06.04
案件名稱:沐木
原無玄關的本案,為製造入門緩衝與保留隱私,在入口與餐廳動線之中,由天花板降下一道落地梧桐木格柵端景,加上前方一塊原木底座,不僅構築一道猶有韻味玄關端景牆設計,更巧妙成為視線後方那道有如山水畫石材沙發背牆的前景,一深一淺、一木頭一石材的前後對比與呼應。
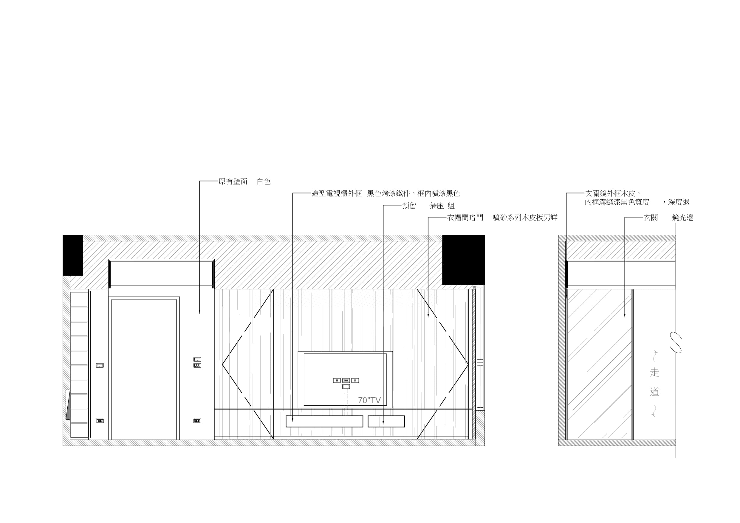
雙主牆,是本案的新觀點,對應格柵木質玄關牆的視線後方,沙發背牆採大片原石切割,石材天然紋理的行雲流水感,與前方玄關的原味木色,利用前後景深,組構一幅立體潑墨山水畫意境。與沙發背牆相對望的電視主牆,則身負隱藏左右兩側出入門重任,因此在整道梧桐鋼刷木皮上,以不等分直線切割融入門片溝縫,內凹機電櫃則讓公領域動線與視覺更為平整順暢,不用刻意裝飾,大尺度線條鋪滿罄道立面就能保有空間的清爽與展延。
設計關鍵:
① 格柵木紋雙面玄關為前景。
② 沙發背牆貼石材。
③ 梧桐木紋電視主牆,隱藏2間房門。

