MAGAZINE INTERVIEW
文居|暗門設計延伸主牆視覺,結合三種材質呼應其他壁櫃面,編入書籍《主牆設計聖經》
媒體:主牆設計聖經
時間:2019.05
案件名稱:文居
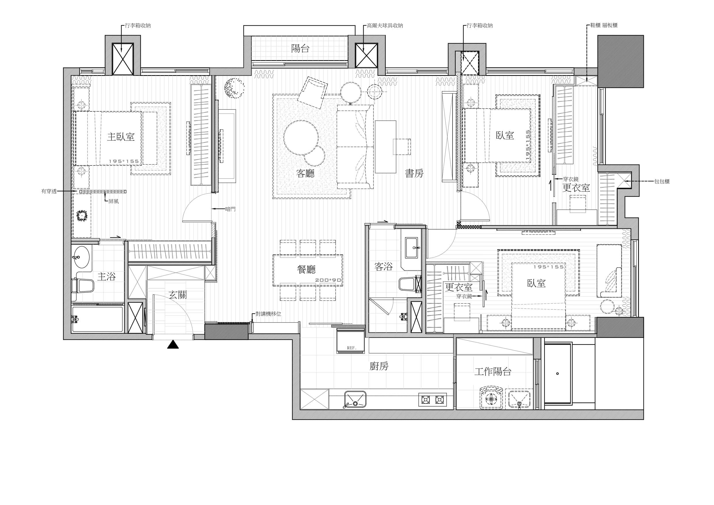
電視主牆不一定是獨立存在,運用與其他壁櫃面呼應連結的材質、色系,會讓空間更為統一、協調,看起來更具完整性、更精緻。本案從玄關即以梧桐木懸吊鞋櫃搭配石材元素,延伸轉彎到整道電視主牆,再結合隱藏門的設計,讓電視主牆視覺不但得以延伸,感覺更為大器之外,更兼具實用機能。 從玄關轉彎延伸至電視牆最左端壁面,先以木格柵隱藏鞋櫃與收納櫃,接著運用梧桐木裝飾於電視石材主牆的兩側,其中一道還隱藏著主臥房門;置中的消光面灰階石材以鐵件收邊包框,上緣並融入天花線板,達到輕化石材目的。而與電視主牆相對望的沙發背牆,即是開放式書房櫃牆,黑色鐵件層架與黑色鑿面石磚背牆,得以與電視主牆材質與色系相呼應。
設計關鍵:
① 電視主牆結合木格柵、梧桐木、石材三種材質。
②
玄關懸吊鞋櫃以梧桐木配搭石材,並將此兩種材質延伸轉彎到電視主牆。
③ 沙發背牆書櫃,以黑色鐵件層板與黑色鑿面石磚打造。

