Hygge|自然材質與現代美學交織的住宅設計
媒體:超高機能設計 / Super Multple Functions
時間:2020.01
案件名稱:Hygge
Case Data
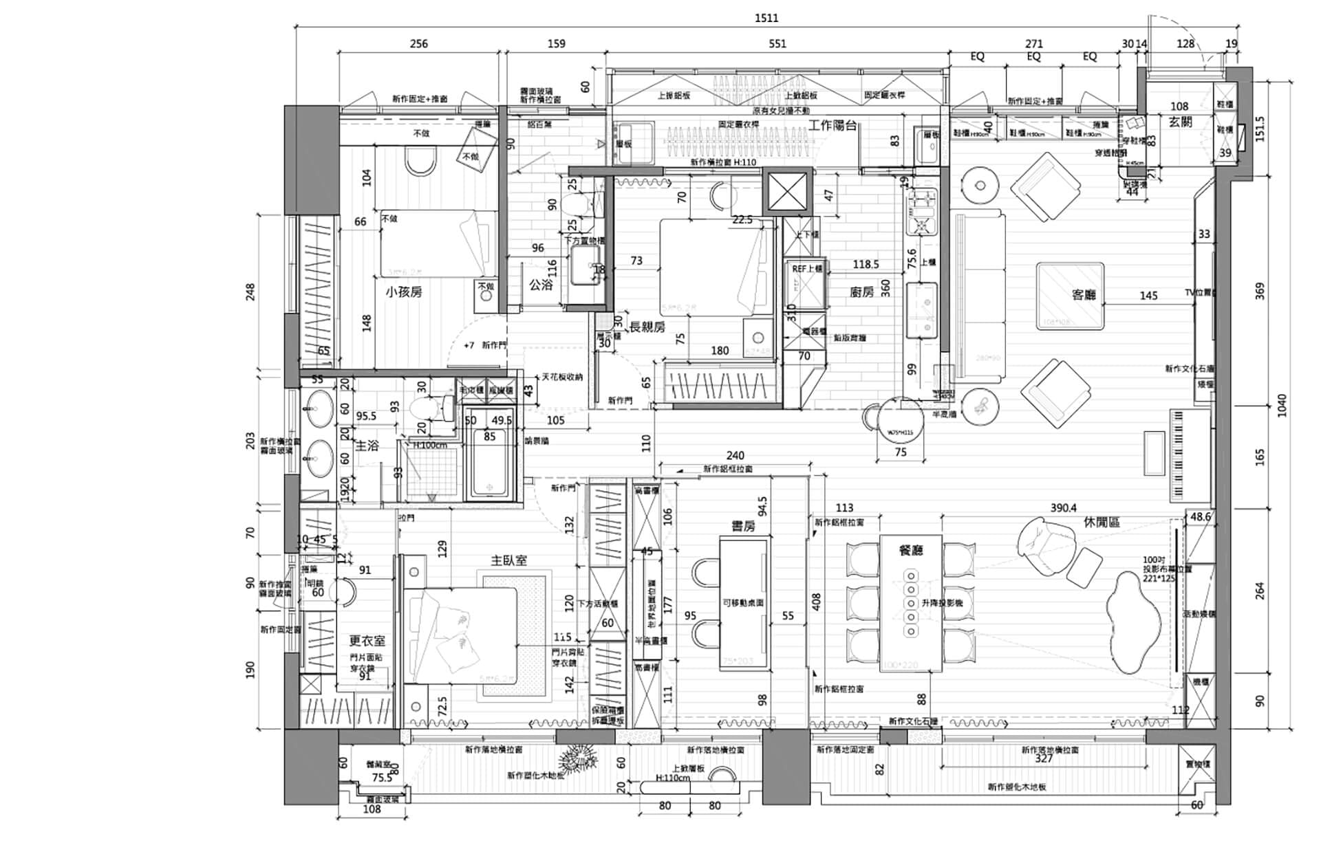
空間形式 | 住宅公寓.45坪.2人•三房兩廳兩衛
主要建材 |
白橡木地板、文化石、木紋磚、板岩磚、鋁框玻璃、米黃大理石
一間30年老房子改造,一個送給女兒的結婚禮物,一份母親的最大心意,設計師為此把原本低矮、開窗太小、廚房狹窄的格局難題,透過開口轉向、窗戶的整合加大、隔間穿透化等手法,讓整個住宅十分貼合北歐風格獨有的明亮、自然、純淨與開放,一個能靈活收起的旋轉吧檯更讓室內日日充滿咖啡香。
收回老房子,決心好好整修一番當作是女兒的新婚賀禮,母親很用心,因為是再疼愛不過的女兒女婿要住的,知道曾經留學芬蘭的女孩依舊嚮往自然、開闊、純粹的生活方式,也知悉女婿從求學時期就喜歡待在咖啡廳唸書的習慣,加上原屋況本來就較低矮且採光不足,因此在以北歐風格定調後,先將緊鄰公領域的書房打通,並把開窗合理加大,以及最重要的廚房開放改向與活動吧檯巧思,讓光線更能從住宅兩端同時進入,隔間變通透了,採光變充足了,房子自然看起來舒適透亮,也顯得大器開闊,有如置身最夯的美型咖啡廳。
在廚房開門方向、隔牆材質與開窗大小改變的同時,格局調整與材質的特殊運用也幫了不少大忙。原本從大門進來一直到落地窗前的客餐廳佔坪其實不小,但因為入口區空間被廚房佔去一角,加上採光分配不均,因此衍生出客餐格局比重失衡的難題,餐廳是要放在大門入口離廚房近點比較好?還是要挪去落地窗前卻又會顯得過大?於是設計師將客餐廳、廚房、書房視為同一領域來重新分配;書房清玻前擺放長型餐桌,正巧佐著好採光用餐,廚房改為開放式+開口轉向餐廳側,進出餐動線更順暢;電視沙發區規劃在大門入口處,能真正放鬆休閒的視聽投影起居區則定位在落地窗與餐桌中間,作為彈性空間的保留與調整,既能延伸用餐區氣氛,也可以作為客廳享樂的擴大,恰到好處的留白重塑了公領域合理分配。
【一物多用】是廚房也是咖啡廳開放廚房隱藏多功能
女主人喜歡敞開明亮的料理環境,男主人想要在家也能享受坐在咖啡廳吧台的樂趣,因此藉由廚房改造後的對外開口面,利用兩端轉角厚度加以改造,分別作為收納擺放咖啡機用具的落地櫃與小而美的活動吧台,將廚房功能延伸擴充,正好銜接餐廳區。
廚房原本開門方向朝向客廳,不僅出入動線卡卡又因為格局封閉而採光不足,因此乾脆封起此道入口,將正對餐廳的面牆移除,成為開口動線朝向餐桌、而視線又可同時望向開放書房與起居休閒區的空間中心,光線還能同時由廚房兩端引入,看起來明亮又清爽舒服。
利用廚房開口兩端轉角所形成的櫃側空間,一端豎起半高純白立面,上方再以活動五金加裝旋轉木質檯面,成為可自由旋轉開展與收起的多功能高腳吧台,展開檯面後能同時容納兩人,收回木桌又不阻礙動線行進;對側轉角則採45度斜向櫃設計,化解因廚櫃垂直厚度所形成的尖銳突兀’擺放咖啡機剛剛好。
【彈性隔間】書房清透彈性隔間 加大尺度,化解採光難題
工作室兼書房的位置本來就處在公私領域交接處,在三間臥室已經很足夠的條件下,書房就被保留調整為彈性區域,可以完全平移打開的活動拉門隔間設計,採用透明玻璃材質,兼具隱私與開放功能,也為餐廚區引入自然採光。
既然要打開書房空間,隔間材質特選L型清玻拉門,清透質感加上刻意強調深黑框架的線條設計,穿透輕盈中又帶有視覺沈澱的層次感,剛好視線焦點落在室內一幅世界地圖上,有質感的黑底紅點不僅展現高藝術品味,更標記著未來壯遊夢想。
將玄關連接客廳處的小窗整合為單一加大開窗面、降低餐桌旁窗戶的窗台高度,並計算好全室由內往外都可以看到的陽台位置,種植綠色植栽。無論從入口玄關、客廳、休閒區、餐桌、廚房與書房,都能一眼望見陽台的自然綠意,照映在室內搭配純白、木紋、文化石等元素,營造清新明亮而悠然舒適的北歐風住宅。

